
Projekt Summit nastao je iz želje da stvorimo vlastito planinsko utočište, prostor tišine, mira i povratka prirodi, daleko od suvremene vreve, ali opet dovoljno blizu.
"Dvije kuće i lipa.Pristup oblikovanju temelji se na reinterpretaciji klasične goranske kuće. Sav sadržaj smješten je pod jedan krov, zbog čega bočni zidovi postaju suvišni. Silueta je osnovna, gotovo dječja, i na prvi pogled približava se A-frameu — ali to nije. Izvedena od punih CLT ploča, “krov-kuća” postaje zaštitna opna: sigurna, stabilna i suvremena.Smještaj obje kuće prati blago kosi teren, postavljen s laganim lateralnim pomakom kako bi se osigurala što veća privatnost i neometan pogled prema šumi. A velika lipa, na samom prilazu parceli, stoji kao svojevrsni nagovještaj — da ovdje počinje nešto drugačije, nešto posebno."– riječ autorice

Redefinirana A-frame arhitektura predstavlja i prvi primjer takve arhitekture izvedene u CLT (cross laminated timber) tehnologiji u Hrvatskoj. Rezultat je spoj napredne drvene konstrukcije i suvremenog dizajna.Ove jedinstvene planinske kuće oblikovane su kao prozračni, svjetlom ispunjeni volumeni. Velike južne staklene stijene brišu granicu između gotovo osam metara visokog interijera i šume.Unutrašnjost je u potpunosti od punog drva koje istodobno nosi konstrukciju i oblikuje završnu površinu zidova i stropova.Kuće uspješno funkcioniraju na dvije razine – kao planinska utočišta koja karakterizira mir i spokoj, te kao suvremeni dom koji pruža sve udobnosti modernog života.
Projekt obuhvaća dvije identične kuće: Summit House One – dostupnu za kupnju i Summit House Two – u trajnom vlasništvu autora projekta.




Područje obiluje šumskim stazama, idealnim za šetnje, planinarenje i biciklizam, dok obližnji Risnjak pruža priliku za istraživanje netaknute divljine i veličanstvenih vidikovaca. Za ljubitelje šetnji uz vodu i vodenih sportova, u neposrednoj blizini nalaze se jezera Bajer i Lokve te rafting na Kupi.Tijekom zime, blizina skijališta Platak i Čelimbaša omogućuje uživanje u snježnim sportovima i zimskom ugođaju Gorskog kotara.Brestova Draga je izvrsno prometno povezana – svega sat i pol vožnje dijeli je od Zagreba, a 40 minuta od Rijeke.U neposrednoj su blizini Mrkopalj i Delnice, koji nude trgovine, restorane i kulturne sadržaje.
CLT je moderan građevinski materijal izrađen od višeslojnih, međusobno okomitih ploča smreke, koje se lijepe prirodnim, netoksičnim ljepilima.U usporedbi s klasičnim A-frame kućama, CLT konstrukcija donosi brojne prednosti:
iznimnu stabilnost i otpornost na vlagu i temperaturne promjene, bez deformacija ili uvijanja drva, bolju zvučnu i toplinsku izolaciju, što znatno smanjuje troškove grijanja,
otpornost na potrese zbog homogenog, samonosivog i elastičnog materijala,
veću protupožarnu sigurnost jer masivne ploče CLT-a gore sporo i predvidljivo, stvarajući zaštitni sloj ugljena koji usporava širenje požara,
prirodnu mikroklimu zahvaljujući difuzijskoj otvorenosti materijala koji „diše“ i uravnotežuje vlagu i temperaturu, stvarajući zdrav i ugodan boravak kroz cijelu godinu,
estetsku vrijednost samog materijala – vidljive drvene plohe stvaraju topao i autentičan interijer bez potrebe za dodatnim oblogama, čime konstrukcija postaje i završna površina.
CLT ploče korištene u ovoj kući proizvedene su u Austriji, jednoj od zemalja koja je, uz Njemačku i Švicarsku, svjetski predvodnik u razvoju i primjeni te tehnologije.U tim državama CLT gradnja postala je standard za moderne planinske kuće, javne objekte, pa čak i višekatne stambene zgrade, sve zahvaljujući trajnosti, potresnoj otpornosti i energetskoj učinkovitosti materijala.Osim konstruktivnih prednosti, CLT nudi i iznimna ekološka svojstva. Drvo korišteno u izradi dolazi iz održivo upravljanih šuma, a sam proces proizvodnje ima znatno manji ugljični otisak od tradicionalnih materijala poput betona ili čelika.
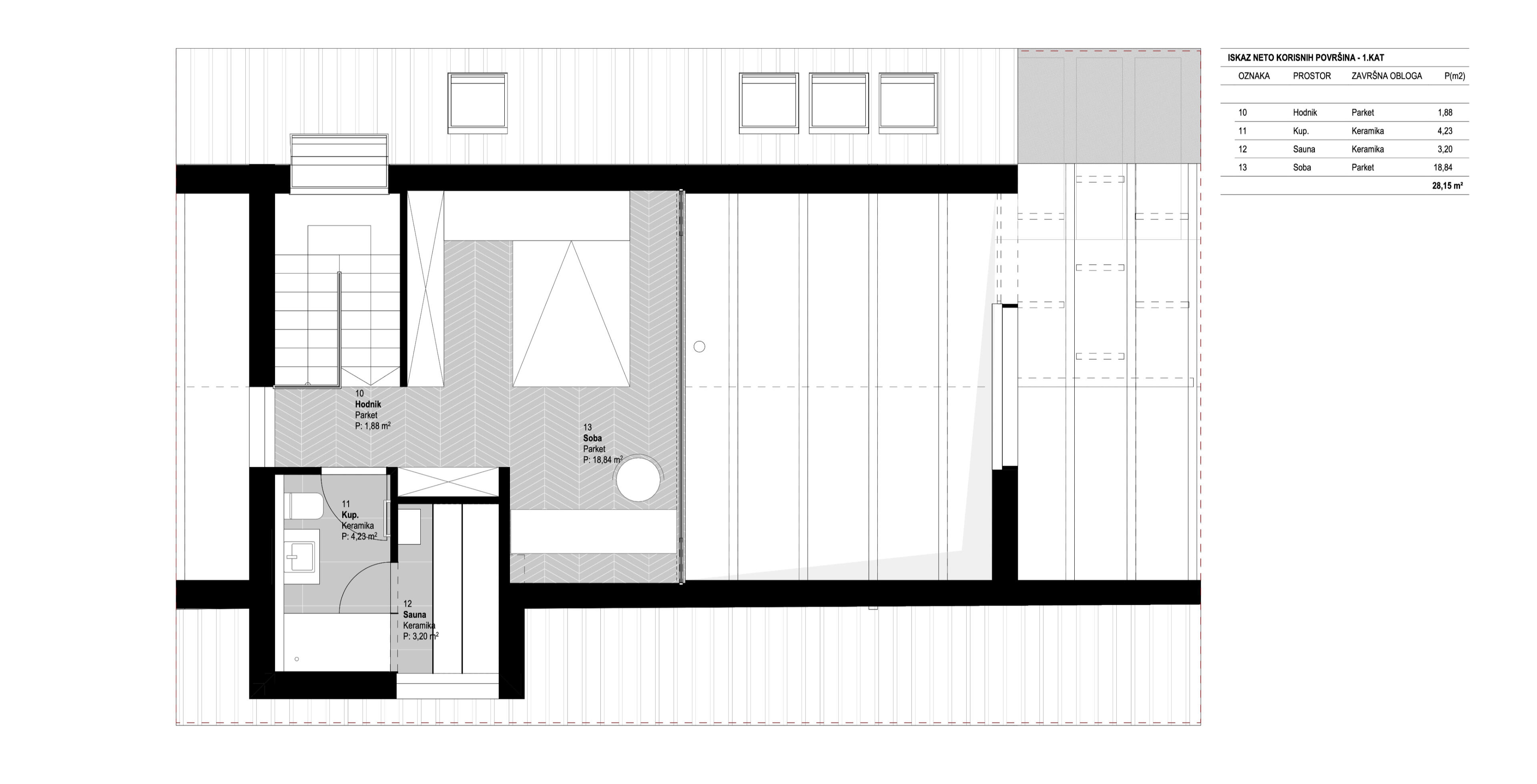
Unutrašnjost kuće izvedena je od punog drva, koje ujedno čini nosivu konstrukciju i završnu površinu zidova i stropova - bez dodatnih obloga, brodskog poda ili letvi. Takav pristup stvara topao, autentičan i vizualno čist prostor, u kojem prirodna tekstura drva daje posebnu atmosferu.Središnji prostor čini otvoreni dnevni dio - kuhinja, blagovaonica i boravak - s visinom od gotovo osam metara i velikim južnim staklenim stijenama koje otvaraju pogled na šumu i unose obilje prirodnog svjetla.Kuća ima dvije spavaće sobe (jednu u prizemlju i drugu na galeriji) te dvije kupaonice i saunu.Tu su i tehnička prostorija, južna natkrivena terasa te sjeverni natkriveni ulaz.Podne obloge čine visokokvalitetna keramika u funkcionalnim prostorima te chevron parket u dnevnim i spavaćim zonama, što prostoru daje profinjen karakter i osjećaj topline.Gradnja ovog tipa iznimno je precizna i tehnički zahtjevna, jer se sve instalacije - od rasvjete, struje i utičnica do vodovoda i prekidača - moraju točno predvidjeti i ugraditi već u fazi proizvodnje CLT elemenata.Svaki detalj je unaprijed planiran, što rezultira besprijekorno izvedenim interijerom koji spaja estetiku, funkcionalnost i vrhunsku izvedbu.


Glavni izvor topline je kaminska peć Schiedel Sirius 1.1, moderna peć s neovisnim dovodom zraka za izgaranje kroz dimovodni sustav, što znači da zrak ne uzima iz prostorije, već ga dovodi izravno izvana kroz Schiedelov sustav dimnjaka s integriranim zračnim kanalom. Ovim rješenjem postiže se veća energetska učinkovitost, stabilnije izgaranje i bolja kvaliteta zraka u interijeru.

Električno podno grijanje raspoređeno je u pet neovisnih zona, s mogućnošću daljinskog upravljanja temperaturom. Sustav temperira kuću tijekom odsutnosti te omogućuje ugodan boravak i grijanje prostora u prijelaznim razdobljima, kada nema potrebe za korištenjem peći.

Sauna je izrađena od punog drva, što pruža prirodnu toplinu i ugodnu aromu prostora. Opremljena je peći snage 9 kW, koja omogućuje brzo zagrijavanje i stabilnu temperaturu za maksimalan komfor. Kroz prozor se otvara pogled na šumu, stvarajući jedinstven doživljaj opuštanja u potpunom skladu s prirodom.

S obzirom na visinu prostora, ugrađen je sustav destratifikacije zraka, koji sprječava nakupljanje topline u gornjim slojevima prostora i osigurava ujednačenu temperaturu u cijelom volumenu kuće. Na taj se način postiže maksimalna udobnost i ušteda energije.

Kuća je opremljena drvenim VELUX krovnim prozorima s električnim roletama koje osiguravaju regulaciju svjetla i zaštitu od snijega i sunca. Južnu fasadu oblikuju aluminijske staklene stijene koje povezuju interijer s prirodom, pružajući obilje dnevnog svjetla i trajnu otpornost na vremenske uvjete.

Zidovi i krov izvedeni su od 14 cm debelih CLT ploča koje pružaju prirodnu toplinsku stabilnost. Dodatni sloj do 16 cm kamene vune na krovu i zidovima te 25 cm prema temeljnoj ploči osigurava izvrsnu energetsku učinkovitost, zvučnu zaštitu i ugodnu mikroklimu u prostoru, čineći kuću toplom zimi i ugodno rashlađenom ljeti.

Telefon:
+385 91 5832 433E-mail: [email protected]
© 2025 Summit Brestova Draga
[email protected]
+385915832433